產品/Leybold

D40BCS-PFPE真空泵
在許多應用,與礦物油相比,使用全氟聚醚(PFPE)油,會有更好的表現。萊寶TRIVAC D40BCS - PFPE真空泵在標準TRIVAC BCS的基礎上使用PFPE油。全氟聚醚(PFPE)LEYBONOL LVO400優點如下所示:- 惰性表現,抗腐蝕,抗氧化。- 高能輻射下不會發生聚合反應。- 延長換油周期- 高度熱穩定。只有在溫度超過290℃(554℉)時才會發生熱分解。萊寶BCS - PFPE真空泵專門配用LEYBONOL LVO 400使用,供貨時沒有注油。建議使用萊寶LEYBONOL...
立即咨詢- 產品概述
- 產品特點
- 產品應用
- 供貨范圍
- 技術參數
- 訂貨信息
在許多應用,與礦物油相比,使用全氟聚醚(PFPE)油,會有更好的表現。
萊寶TRIVAC D40BCS - PFPE真空泵在標準TRIVAC BCS的基礎上使用PFPE油。
全氟聚醚(PFPE)LEYBONOL LVO400優點如下所示:
- 惰性表現,抗腐蝕,抗氧化。
- 高能輻射下不會發生聚合反應。
- 延長換油周期
- 高度熱穩定。只有在溫度超過290℃(554℉)時才會發生熱分解。
萊寶BCS - PFPE真空泵專門配用LEYBONOL LVO 400使用,供貨時沒有注油。
建議使用萊寶LEYBONOL LVO 400泵油,并安裝化學油過濾器CF或CFS,,具體請聯系萊寶官方授權:安博元科技 0510-8510-0806 info@anboyuan.com
萊寶TRIVAC D-BCS-PFPE真空泵在標準TRIVAC BCS的基礎上使用PFPE油。
全氟聚醚(PFPE)LEYBONOL LVO400優點如下所示:
- 惰性表現,抗腐蝕,抗氧化。
- 高能輻射下不會發生聚合反應。
- 延長換油周期
- 高度熱穩定。只有在溫度超過290℃(554℉)時才會發生熱分解。
更多信息請聯系萊寶官方授權:安博元科技 0510-8510-0806 info@anboyuan.com

萊寶TRIVAC D 25 BCS-PFPE真空泵,帶CFS 16 - 25和ARS 16-25(左圖)
萊寶TRIVAC D 65 BCS-PFPE真空泵,帶CFS 40 - 65(右圖)

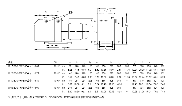
萊寶TRIVAC D 16 - D 65 BCS - PFPE真空泵尺寸圖

1) 符合DIN 28 400和以下數據。
2) 有交流電機(50赫茲)的真空泵電機額定值和噪聲級。
有其他電機的真空泵偏離前述表值的數據以及其他電機關聯數據參見“產品”中“TRIVAC B、BCS和BCS - PFPE的電機關聯數據”。
3) 參見“萊寶TRIVAC B、BCS和BCS - PFPE的電機關聯數據”。
4) 交付時

更多信息請聯系萊寶官方授權:安博元科技 0510-8510-0806 info@anboyuan.com

更多信息請聯系萊寶官方授權:安博元科技 0510-8510-0806 info@anboyuan.com































